House

Contemporary Comfort meets Breathtaking Coastal Views


Bed3
Bath2
Car2
Land792m2

Just a short, level stroll from the charming Mapleton village, this newly completed residence delivers the perfect balance of contemporary comfort, low-maintenance living, and some of the most breathtaking views on the Range. From the moment you step inside, the outlook immediately draws your eye – stretching across hinterland ridges, green valleys, and all the way to the ocean.

Designed with ease and relaxation in mind, this quality-built two-storey home sits on a manageable 792m² block, leaving you free to enjoy your weekends, or even utilise as an effortless holiday escape. Oversized windows and thoughtfully positioned living spaces ensure the spectacular outlook remains the constant backdrop to everyday living – whether you’re enjoying a quiet morning coffee, hosting friends on the expansive deck, or unwinding after a long week.

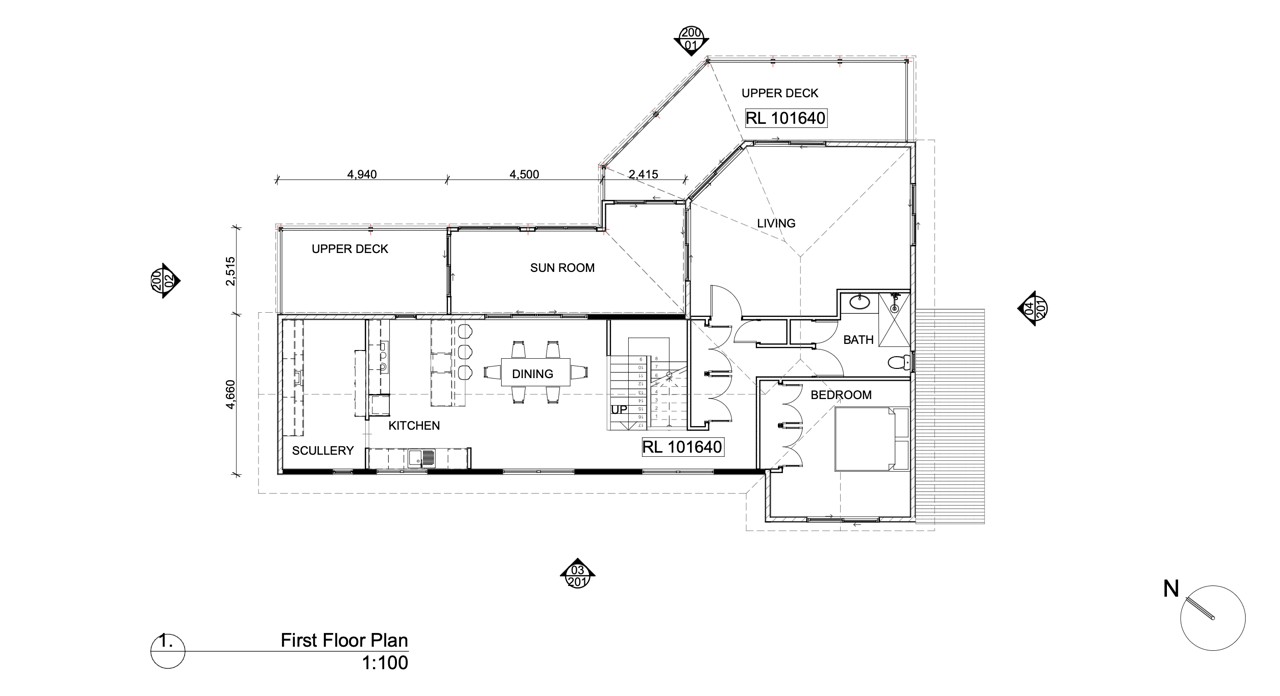
The light-filled layout includes three generous bedrooms, two stylish bathrooms, and three separate living zones, offering superb flexibility for visiting family, guests, or dual-living configurations. The custom-designed kitchen with its butler’s pantry, Miele appliances, induction cooktop, and stone finishes elevates both entertaining and day-to-day simplicity.

Features We Love:

– Newly completed, high-quality two-storey home
– Panoramic hinterland and coastal views, never to be built out
– Flexible layout with excellent dual living potential
– Bespoke kitchen with butler’s pantry and premium Miele appliances
– Upper level with dining, lounge, main bedroom, bathroom, two decks
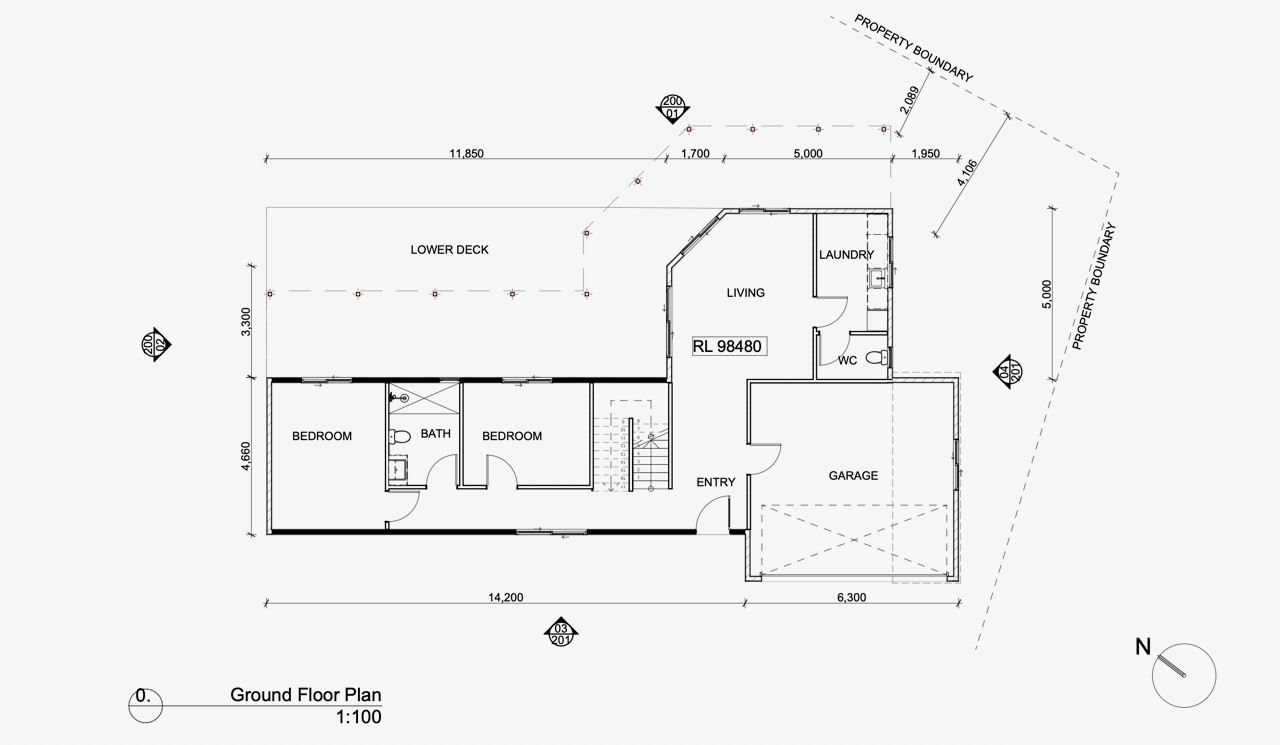
– Ground level with two bedrooms, bathroom, rumpus, laundry
– 792m2 block with low maintenance landscaping
– Double remote garage plus guest parking
– 45,000L rainwater tank and approx. 10kW solar system
– Private setting just off Flaxton Drive
– Easy stroll into Mapleton village

With a private position nestled just off Flaxton Drive, this is a rare opportunity to secure a newly built home in one of Mapleton’s most prized locations. We look forward to welcome you to an upcoming open home, or call Meg on 0421 040 807 or Athena on 0408 884 104 to book your inspection today.

Disclaimer:
The information statements, views, or opinions expressed in this publication are to be used as a guide only. Neither the Seller, Property Lane Realty, nor any other person involved in the preparation of distribution of this material, gives any guarantee or warranty concerning the accuracy or validity of its contents nor will they accept any liability. All prospective Buyers should make their own enquiries and satisfy themselves by inspection or otherwise as to the suitability of the property.

Read more

Sign Up for Property Alerts

This field is hidden when viewing the form
This field is hidden when viewing the form
This field is hidden when viewing the form

Explore latest Properties

Ready to Find
Your Ideal Home?

Send through your requirements and we'll notify you of properties within your criteria.

Request Online Appraisal